Studio 164 Via del Commercio, 6 55041 – Capezzano P. – Camaiore (LU)
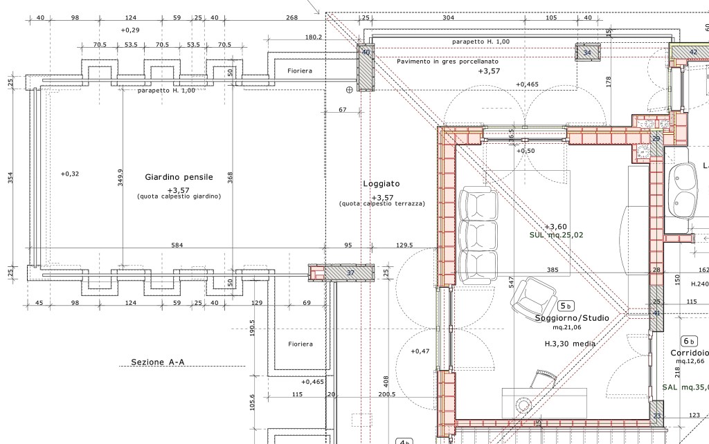
Villa Lucia
La nuova abitazione per una famiglia toscana.
Continuando a utilizzare questo sito web si accetta l’utilizzo dei cookie. Per informazioni, anche sul controllo dei cookie, leggi qui: Informativa sui cookie.